Продажа дома, Прокопьевск, Бежецкая ул., Кемеровская область
- Регион
- Кемеровская область
| Адрес | Прокопьевск, Бежецкая ул.Объект на карте |
- Площадь дома
- 110.50 м2
- Площадь участка
- 7.00 сот.
- Дата обновления
- 30.04.2026
Дом по ул. Бежецкая. Общей площадью: 110.50 кв. м. К покупке предлагается частный дом 1981 г. п., расположенный в районе Северного Маганака в 5-10 минутах ходьбы до центральной дороги, остановки .
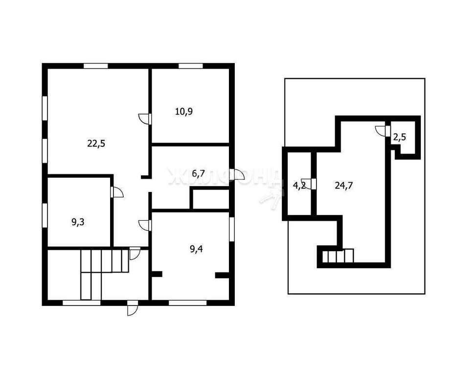
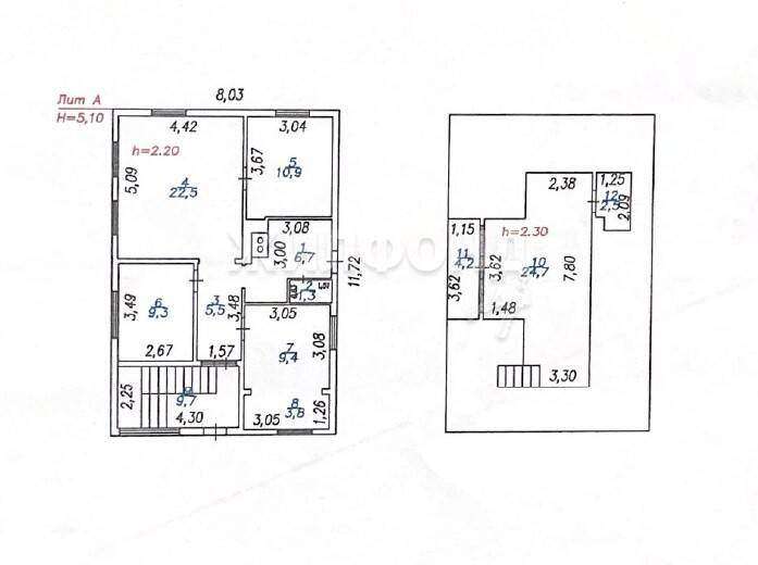
В 2020 г. была произведена реконструкция и перепланировка дома, в результате чего был надстроен второй этаж и обустроен санузел. Также, в процессе перепланировки, появилась просторная кухня-гостинная площадью 22,5 м2. На первом этаже располагаются три небольшие изолированные спальни, а на втором этаже оформлена большая студия площадью 24.7 м2 с небольшим балкончиком, выходящим в сад.
Стены в доме оклеены обоями, на потолок наклеена потолочная плитка, напольное покрытие - линолеум , постеленный на ДСП.
Окна в доме - деревянные стеклопакеты, смотрят на все стороны.
Дом облицован деревянной рейкой и окрашен краской. Крыша покрыта шифером. Дом имеет два выхода - на улицу и во двор.
Периметр участка огорожен капитальным забором. На участке располагаются теплица, хоз. постройки. Внутренний дворик небольшой и уютный с тенистой беседкой. Перголы с вьющимися растениями, в том числе настоящей виноградной лозой. Площадка под разборный бассейн. Произрастают плодовые деревья (яблоня, вишня и т. д. ) , ягодные кустарники. Расположение дома позволяет спрятаться от ежедневной суеты и шума. Подъезд к участку отсыпан щебнем и зимой чистится регулярно. Дом подходит как для постоянного проживания, так и для дачи.
В шаговой доступности расположена вся инфраструктура. Средняя школа №51, детский сад Дюймовочка, детская поликлиника №4, стоматологическая поликлиника, супермаркеты, аптеки, парикмахерские, почта, банкоматы.
Благодаря сотрудничеству с ведущими банками, компания Жилфонд предлагает оформление ипотеки любой сложности, с преференциями по процентной ставке, без первоначального взноса. С использованием материнского капитала.
- Федеральная компания Жилфонд РФ, на рынке с 1997 года
- Гарантия безопасной сделки
- Одобрение и рефинансирование ипотеки по ставкам от 12,5%
- Срочный выкуп и обмен на вашу недвижимость
- Комплексная услуга для покупателя с полной финансовой ответственностью агентства
- Дополнительно оплачивается комиссия с покупателя
При звонке, пожалуйста, сообщите номер варианта -
JV008042150099
В 2020 г. была произведена реконструкция и перепланировка дома, в результате чего был надстроен второй этаж и обустроен санузел. Также, в процессе перепланировки, появилась просторная кухня-гостинная площадью 22,5 м2. На первом этаже располагаются три небольшие изолированные спальни, а на втором этаже оформлена большая студия площадью 24.7 м2 с небольшим балкончиком, выходящим в сад.
Стены в доме оклеены обоями, на потолок наклеена потолочная плитка, напольное покрытие - линолеум , постеленный на ДСП.
Окна в доме - деревянные стеклопакеты, смотрят на все стороны.
Дом облицован деревянной рейкой и окрашен краской. Крыша покрыта шифером. Дом имеет два выхода - на улицу и во двор.
Периметр участка огорожен капитальным забором. На участке располагаются теплица, хоз. постройки. Внутренний дворик небольшой и уютный с тенистой беседкой. Перголы с вьющимися растениями, в том числе настоящей виноградной лозой. Площадка под разборный бассейн. Произрастают плодовые деревья (яблоня, вишня и т. д. ) , ягодные кустарники. Расположение дома позволяет спрятаться от ежедневной суеты и шума. Подъезд к участку отсыпан щебнем и зимой чистится регулярно. Дом подходит как для постоянного проживания, так и для дачи.
В шаговой доступности расположена вся инфраструктура. Средняя школа №51, детский сад Дюймовочка, детская поликлиника №4, стоматологическая поликлиника, супермаркеты, аптеки, парикмахерские, почта, банкоматы.
Благодаря сотрудничеству с ведущими банками, компания Жилфонд предлагает оформление ипотеки любой сложности, с преференциями по процентной ставке, без первоначального взноса. С использованием материнского капитала.
- Федеральная компания Жилфонд РФ, на рынке с 1997 года
- Гарантия безопасной сделки
- Одобрение и рефинансирование ипотеки по ставкам от 12,5%
- Срочный выкуп и обмен на вашу недвижимость
- Комплексная услуга для покупателя с полной финансовой ответственностью агентства
- Дополнительно оплачивается комиссия с покупателя
При звонке, пожалуйста, сообщите номер варианта -
JV008042150099













