Продажа 2-комнатной квартиры, Новокузнецк, Вокзальная ул., 113, Кемеровская область
- Регион
- Кемеровская область
| Адрес | Новокузнецк, Вокзальная ул., 113Объект на карте |
- Тип дома
- Кирпичный
- Этаж
- 1 этаж в 5-этажном доме
- Кол-во комнат
- 2
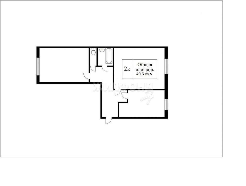
- Общая площадь
- 49.50 м2
- Жилая площадь
- 26.80 м2
- Площадь кухни
- 6.70 м2
- Дата обновления
- 30.04.2026
- Дата размещения
- 13.12.2025
2 комн. квартира по ул. Вокзальная. Общей площадью: 49.50 кв. м. Предлагается к покупке, прекрасная двухкомнатная квартира с качественным ремонтом.
Квартира площадью 49,5 квадратных метров, расположенная на первом этаже пятиэтажного дома, обязательно понравится всем, кто ценит комфорт и удобство.
В квартире сделан современный ремонт, что добавляет уютности и приятного впечатления о новом жилье. Мы предлагаем идеальное сочетание цена-качество, что делает это предложение еще более привлекательным. Несомненным плюсом является то, что после приобретения данной квартиры, вам достанется вся мебель и бытовая техника, которая находится в ней на данный момент.
Это отличное жилье для семей с детьми, ведь в непосредственной близости находятся детские сады и школы. Также эта квартира будет отличным вариантом для молодых людей, студентов, родителей и пожилых родственников.
Если вы планируете приобретение жилья в ипотеку или хотите воспользоваться материнским капиталом, это жилье идеально подходит для вас.
В окрестностях дома находятся все необходимые учреждения- детские сады, школа, медицинские учреждения, театры, супермаркеты. Также в 100 метрах расположены супермаркеты Пятёрочка и Магнит.
Не упустите свой шанс на приобретение отличной квартиры по привлекательной цене! Свяжитесь с нами сейчас, чтобы узнать больше информации и договориться о просмотре жилья.
Квартира в ожидании своих новых обитателей, не упустите этот шанс на комфортное и уютное проживание!
Возможен обмен на вашу недвижимость.
При звонке, пожалуйста, сообщите номер варианта -
JV002042126877
Квартира площадью 49,5 квадратных метров, расположенная на первом этаже пятиэтажного дома, обязательно понравится всем, кто ценит комфорт и удобство.
В квартире сделан современный ремонт, что добавляет уютности и приятного впечатления о новом жилье. Мы предлагаем идеальное сочетание цена-качество, что делает это предложение еще более привлекательным. Несомненным плюсом является то, что после приобретения данной квартиры, вам достанется вся мебель и бытовая техника, которая находится в ней на данный момент.
Это отличное жилье для семей с детьми, ведь в непосредственной близости находятся детские сады и школы. Также эта квартира будет отличным вариантом для молодых людей, студентов, родителей и пожилых родственников.
Если вы планируете приобретение жилья в ипотеку или хотите воспользоваться материнским капиталом, это жилье идеально подходит для вас.
В окрестностях дома находятся все необходимые учреждения- детские сады, школа, медицинские учреждения, театры, супермаркеты. Также в 100 метрах расположены супермаркеты Пятёрочка и Магнит.
Не упустите свой шанс на приобретение отличной квартиры по привлекательной цене! Свяжитесь с нами сейчас, чтобы узнать больше информации и договориться о просмотре жилья.
Квартира в ожидании своих новых обитателей, не упустите этот шанс на комфортное и уютное проживание!
Возможен обмен на вашу недвижимость.
При звонке, пожалуйста, сообщите номер варианта -
JV002042126877























