Продажа 1-комнатной квартиры, Новокузнецк, Дружбы пр, 8, Кемеровская область
- Регион
- Кемеровская область
| Адрес | Новокузнецк, Дружбы пр, 8Объект на карте |
- Тип дома
- Панельный
- Этаж
- 2 этаж в 5-этажном доме
- Кол-во комнат
- 1
- Общая площадь
- 30.90 м2
- Жилая площадь
- 18.00 м2
- Площадь кухни
- 6.00 м2
- Дата обновления
- 30.04.2026
- Дата размещения
- 13.12.2025
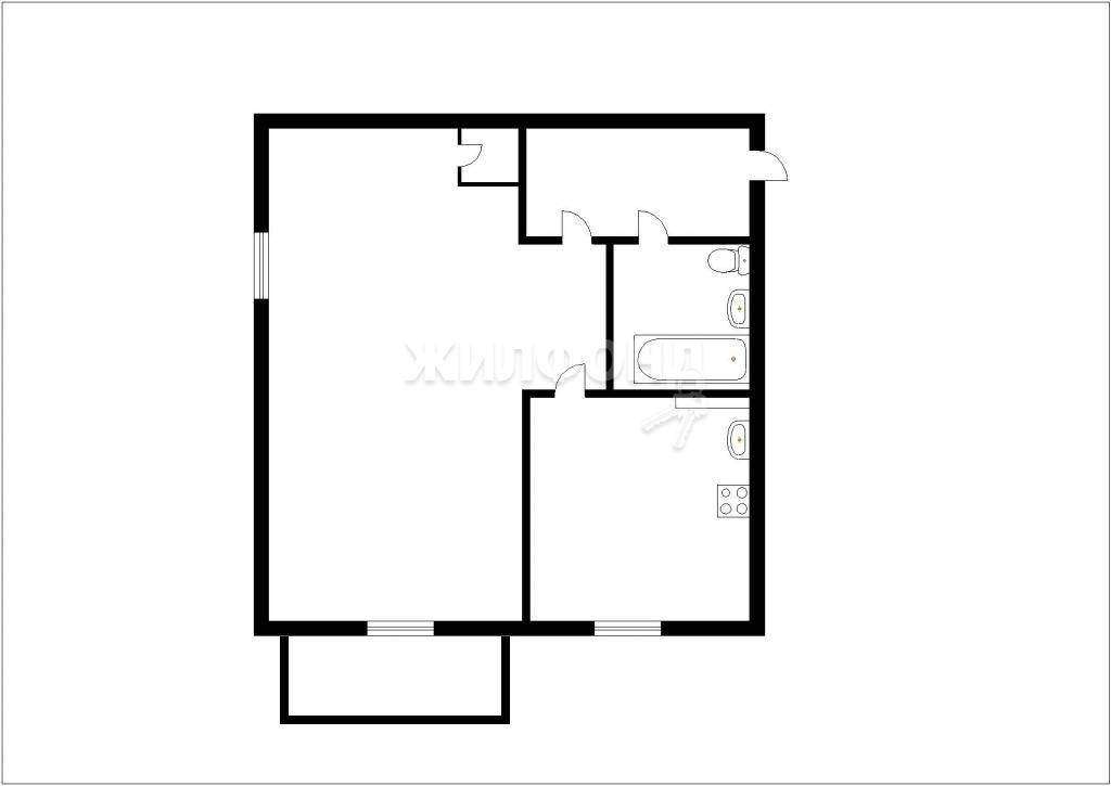
1 комн. квартира по ул. Дружбы проспект. Общей площадью: 30.90 кв. м. Продается уютная однокомнатная квартира в Новокузнецке по адресу проспект Дружбы, 8. Общая площадь квартиры составляет 30,9 кв. м, жилая площадь 18 кв. м, площадь кухни 6 кв. м. Квартира расположена на 2-м этаже 5-этажного панельного дома, построенного в 1963 году.
В квартире есть косметический ремонт, что позволяет вам сразу заехать и жить без необходимости срочного ремонта. Планировка включает одну комнату и кухню, санузел совмещен. Окна выходят во двор, поэтому в квартире тихо и уютно. Есть балкон, где можно отдохнуть на свежем воздухе или устроить небольшую зону для хранения.
Дом находится в хорошем состоянии. Есть наземная парковка, что удобно для владельцев автомобилей. Дом расположен в районе с развитой инфраструктурой.
В шаговой доступности находятся несколько школ и детских садов, что делает этот район отличным выбором для семей с детьми. Рядом есть клиники и магазины, поэтому все необходимое всегда под рукой.
Квартира продается от собственника, поэтому можно избежать дополнительных комиссий. Все документы готовы для сделки, возможна покупка в ипотеку.
Записывайтесь на просмотр и приезжайте увидеть эту прекрасную квартиру своими глазами!
Возможен обмен на вашу недвижимость.
При звонке, пожалуйста, сообщите номер варианта -
JV001042117004
В квартире есть косметический ремонт, что позволяет вам сразу заехать и жить без необходимости срочного ремонта. Планировка включает одну комнату и кухню, санузел совмещен. Окна выходят во двор, поэтому в квартире тихо и уютно. Есть балкон, где можно отдохнуть на свежем воздухе или устроить небольшую зону для хранения.
Дом находится в хорошем состоянии. Есть наземная парковка, что удобно для владельцев автомобилей. Дом расположен в районе с развитой инфраструктурой.
В шаговой доступности находятся несколько школ и детских садов, что делает этот район отличным выбором для семей с детьми. Рядом есть клиники и магазины, поэтому все необходимое всегда под рукой.
Квартира продается от собственника, поэтому можно избежать дополнительных комиссий. Все документы готовы для сделки, возможна покупка в ипотеку.
Записывайтесь на просмотр и приезжайте увидеть эту прекрасную квартиру своими глазами!
Возможен обмен на вашу недвижимость.
При звонке, пожалуйста, сообщите номер варианта -
JV001042117004





















