Продажа 1-комнатной квартиры, Новокузнецк, Обнорского ул., 42, Кемеровская область
- Регион
- Кемеровская область
| Адрес | Новокузнецк, Обнорского ул., 42Объект на карте |
- Тип дома
- Кирпичный
- Этаж
- 5 этаж в 5-этажном доме
- Кол-во комнат
- 1
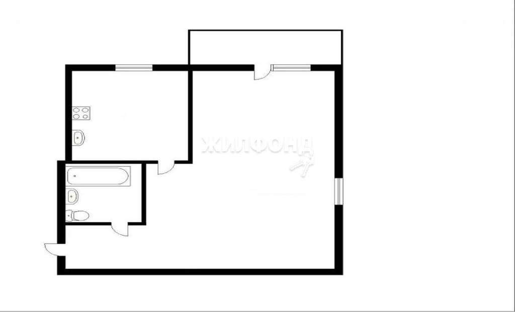
- Общая площадь
- 31.00 м2
- Жилая площадь
- 16.00 м2
- Площадь кухни
- 6.00 м2
- Дата обновления
- 30.04.2026
- Дата размещения
- 13.12.2025
1 комн. квартира по ул. Обнорского. Общей площадью: 31.00 кв. м. Продам 1-комнатную квартиру в Кузнецком районе, расположенную на 5 этаже пятиэтажного дома. Общая площадь квартиры составляет 31 кв. м, площадь кухни- 6 кв. м. Раздельная ( изолированная ) планировка. В квартире выполнен качественный ремонт. Установлены окна ПВХ. Напольное покрытие- линолеум. Санузел совмещенный ( выложен кафелем ) , установлены приборы учёта. Очень теплая квартира, установлены новые радиаторы отопления. Угловая это даёт возможность проявить фантазию в ремонте. По всей квартире натяжные бело-матовые потолки. Электропроводка новая, медная. Окна и потолки немного больше чем обычно в хрущевках, высота потолка 2,75 м. Балкон застеклен пластиковыми окнами.
Ухоженный подъезд, спокойные соседи, парковочные места возле дома. В шаговой доступности- остановки общественного транспортна, Детский сад №25, Детский сад №145, Детский сад №145, Дом детского творчества №1, магазины, школы, поликлиники, почтовые отделения, отделения Сбербанка, ДК Алюминщик.
Бесплатная консультация и подача документов на ипотечное решение в банки- партнеры от нашей компании ЖИЛФОНД.
Возможен обмен на вашу недвижимость.
При звонке, пожалуйста, сообщите номер варианта -
JV001042115119
Ухоженный подъезд, спокойные соседи, парковочные места возле дома. В шаговой доступности- остановки общественного транспортна, Детский сад №25, Детский сад №145, Детский сад №145, Дом детского творчества №1, магазины, школы, поликлиники, почтовые отделения, отделения Сбербанка, ДК Алюминщик.
Бесплатная консультация и подача документов на ипотечное решение в банки- партнеры от нашей компании ЖИЛФОНД.
Возможен обмен на вашу недвижимость.
При звонке, пожалуйста, сообщите номер варианта -
JV001042115119











