Продажа 2-комнатной квартиры, Междуреченск, Строителей пр., 37, Кемеровская область
- Регион
- Кемеровская область
| Адрес | Междуреченск, Строителей пр., 37Объект на карте |
- Тип дома
- Кирпичный
- Этаж
- 5 этаж в 5-этажном доме
- Кол-во комнат
- 2
- Общая площадь
- 60.60 м2
- Жилая площадь
- 40.00 м2
- Площадь кухни
- 16.00 м2
- Дата обновления
- 30.04.2026
- Дата размещения
- 13.12.2025
2 комн. квартира по ул. Строителей проспект. Общей площадью: 60.60 кв. м. Продаётся просторная и уютная квартира в хорошем районе города Междуреченск!
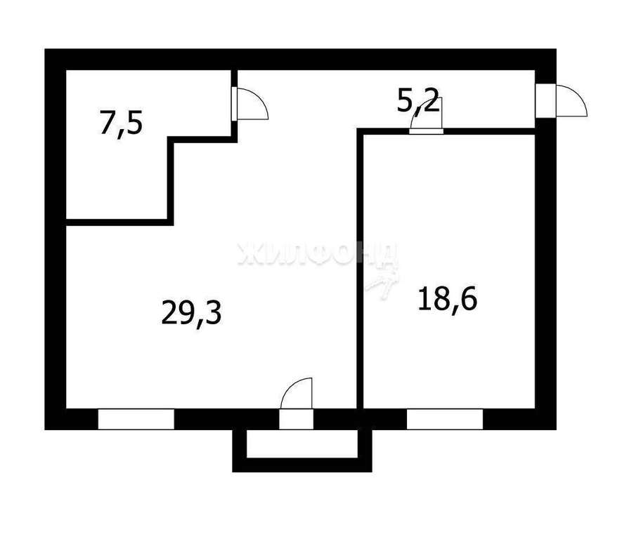
В квартире сделана узаконенная перепланировка кухня-гостиная 29,3 кв. м., комната 18,6 кв. м. и санузел 7,5 кв. м. Высота потолков 2,95 м. Квартира расположена на 5 этаже 5-этажного дома, все окна выходят во двор что обеспечивает тишину и отсутствие лишнего шума от дороги и соседей. Площадь квартиры составляет 60.6 кв. м., что позволит разместиться всей семье с комфортом.
В квартире сделан качественный ремонт, который не требует дополнительных вложений. Все коммуникации заменены на новые, установлены счетчики на воду и электричество, что позволит вам экономить на коммунальных платежах.
Дом расположен на Строителей проспекте, который является одним из главных транспортных магистралей города. Рядом с домом есть остановки общественного транспорта, что обеспечивает удобное сообщение с другими районами города и центром. Также в непосредственной близости находятся магазины, аптеки, банки, школы и детские сады, что делает этот район идеальным для комфортной жизни.
Квартира подходит под любой вид расчета- наличка, ипотека, сертификаты.
АН Жилфонд поможет оформить ипотеку на выгодных условиях в ведущих банках России. Проводим сделки любой сложности.
Возможен обмен на вашу недвижимость.
При звонке, пожалуйста, сообщите номер варианта -
JV002042119581
В квартире сделана узаконенная перепланировка кухня-гостиная 29,3 кв. м., комната 18,6 кв. м. и санузел 7,5 кв. м. Высота потолков 2,95 м. Квартира расположена на 5 этаже 5-этажного дома, все окна выходят во двор что обеспечивает тишину и отсутствие лишнего шума от дороги и соседей. Площадь квартиры составляет 60.6 кв. м., что позволит разместиться всей семье с комфортом.
В квартире сделан качественный ремонт, который не требует дополнительных вложений. Все коммуникации заменены на новые, установлены счетчики на воду и электричество, что позволит вам экономить на коммунальных платежах.
Дом расположен на Строителей проспекте, который является одним из главных транспортных магистралей города. Рядом с домом есть остановки общественного транспорта, что обеспечивает удобное сообщение с другими районами города и центром. Также в непосредственной близости находятся магазины, аптеки, банки, школы и детские сады, что делает этот район идеальным для комфортной жизни.
Квартира подходит под любой вид расчета- наличка, ипотека, сертификаты.
АН Жилфонд поможет оформить ипотеку на выгодных условиях в ведущих банках России. Проводим сделки любой сложности.
Возможен обмен на вашу недвижимость.
При звонке, пожалуйста, сообщите номер варианта -
JV002042119581

















